札内中央町_3号棟 北海道中川郡幕別町札内中央町3,540万円の中古一戸建て|中古住宅や中古物件情報|ピタットハウスFC丸正池田

中古一戸建て

札内中央町_3号棟 お気に入り
価格 3,540万円値下がり ローンシミュレーション
所在地 北海道中川郡幕別町札内中央町
この地域周辺の物件を見る
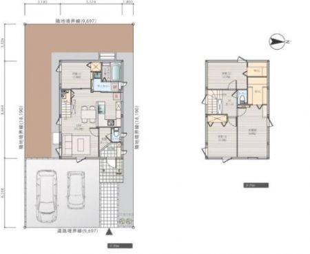
土地面積 176.39m² (53.36坪) 建物面積 94.93u
築年月 2023年1月築 間取り 4LDK (LDK15.2帖 洋室3.8帖 洋室6帖 洋室6.8帖 洋室5.5帖 洋室5.3帖)
交通
JR根室本線 札内/徒歩17分
JR根室本線 帯広/徒歩76分
JR根室本線 柏林台/徒歩107分
ここがおすすめ

太陽光発電システム3.12kW蓄電池4.0kWh、HEMS搭載エクステリア(アスファルト舗装・民地石・平板・植栽・砂利)照明器具付(全室LED照明)カーテン類付 エアコンリビング1台


  •  建物外観
  •  間取り
  •  幕別町図書館札内分館:2385m
  •  帯広警察署:5526m
  •  若草公園:803m
  •  -
  •  -
  •  -
  •  -
  •  -
  •  -
  •  -
  •  -
  •  -
  •  -
  •  -
  •  -
  •  -
お問い合わせ、資料請求、見学のお申し込みはこちらから

電話をかける(携帯・PHS可)
0155-37-1010
「ホームページを見て」とお伝え下さい。

お問い合わせ番号をお伝えください
RHS-TX400799

内見予約・お問い合わせ

 地図情報

セールスポイント

特徴
  • 洗髪洗面化粧台
  • 温水洗浄便座
  • カースペース2台
セールスコメント 家具(ソファ・ダイニングセット・センターテーブル・ラグマット)LDK15畳以上

物件概要

採光面 - 構造/階数 軽量鉄骨造/地上2階建
建ぺい率 -(%) 容積率 -(%)
駐車場 現況/引渡し 空家/即時
土地権利 所有権 私道負担面積 -

接道状況 接道: 東 公道 道路幅: 10m 用途地域
第二種中高層住居専用地域
セットバック - 法令上の制限 -
地目 - 地勢
建築確認番号 都市計画 -
小学校区 幕別町立白人小学校
(北海道中川郡幕別町)
この学区の他の物件を見る
中学校区 札内中学校
(北海道中川郡幕別町)
この学区の他の物件を見る
取引態様 媒介 国土法届出 不要
その他備考 施工会社:
※各種情報と差異がある場合は現況優先となります
※物件情報の学区情報について
当サイト物件情報に記載されております通学区域(学区)情報は、国土数値情報ダウンロードサービスが提供する小学校区データ【2016年度】及び中学校区データ【2016年度】を元に加工したものですので、記載情報が現在の学区域と異なる場合がございます。
国土数値情報ダウンロードサービスのWEBサイト上で記述通り、データは必ずしも正確とは言えません。また、通学区域(学区)は毎年見直しの対象となりますので、そちらを踏まえ学区情報は参考としてご活用下さい。

周辺環境

保育園・保育園 札内青葉保育園までの距離:1027m 小学校 幕別町立白人小学校までの距離:1477m
中学校 幕別町立札内東中学校までの距離:1287m 高校 北海道幕別清陵高校までの距離:1761m
役所 帯広市役所までの距離:5944m 郵便局 札内郵便局までの距離:831m
図書館 幕別町図書館札内分館までの距離:2385m 交番 帯広警察署までの距離:5526m
公園 若草公園までの距離:803m 病院 医療法人社団翔嶺館十勝の杜病院までの距離:2105m
銀行 JAさつない本所までの距離:1234m 買物
コンビニ セイコーマート札内若草店までの距離:389m ドラッグストア サツドラ幕別札内店までの距離:1340m
お問い合わせ、資料請求、見学のお申し込みはこちらから

電話をかける(携帯・PHS可)
0155-37-1010
「ホームページを見て」とお伝え下さい。

お問い合わせ番号をお伝えください
RHS-TX400799

内見予約・お問い合わせ

この物件でローンシミュレーションする

年利率
ボーナス払い 返済年数
頭金 直接入力する 万円

毎月のご返済額

ボーナス(×年2回)

物件価格

3,540万円
※返済金額はあくまでも目安です。
  • こちらの物件を見たお客様はこんな物件もチェックしています。
  • お気に入り物件

電話でお問い合わせ
株式会社丸正池田 帯広店

電話をかける

0155-37-1010

※「ホームページを見て」とお伝えください。
お問い合わせ番号をお伝えください
RHS-TX400799

お問い合わせ

お問い合わせ内容
お問合せ内容必須
【備考欄】
詳細な見学ご希望時間、ご質問、ご希望条件などがございましたらお聞かせ下さい。
(2000文字以内)
お客様情報
お名前必須
連絡先必須 メールアドレス

※ご記入いただいたメールアドレス宛てに、お問合せ内容の確認メールをお送りいたします。
※Yahoo!メールなどのフリーメールをご利用の場合、迷惑メールフォルダに入る場合があります。
 迷惑メールのフォルダ・設定等をご確認下さい。
電話番号
FAX(任意)
個人情報の取扱いについて

必須


※ご入力いただいたお客さまの個人情報は、「個人情報の取扱いについて」に基づき適正に取り扱います。必ずお読みになり、同意の上お問い合わせください。

お気軽にお問い合わせください

0155-37-1010
物件番号 RHS-TX400799
※「ホームページを見て」
とお伝え下さい。