| 価格 | 2,550万円 ![]() |
||||
|---|---|---|---|---|---|
| 所在地 | 北海道旭川市春光台二条4丁目
この地域周辺の物件を見る |
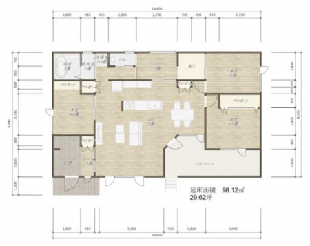
土地面積 | 378.21m² (114.41坪) | 建物面積 | 98.12u |
| 築年月 | 新築 2026年築 | 間取り | 3LDK (LDK25帖 洋室6帖 洋室6.5帖 洋室4.8帖) | ||
| 交通 |
JR函館本線 近文/徒歩63分
JR宗谷本線 新旭川/徒歩75分 JR石北本線 南永山/徒歩83分 バス 春光台3条4丁目徒歩約5分 |
||||
電話をかける(携帯・PHS可)
0166-74-7902
「ホームページを見て」とお伝え下さい。
お問い合わせ番号をお伝えください
RHS-TX400794
地図情報 |
| 特徴 |
|
|---|---|
| セールスコメント | ウォークインクローゼットが付いており収納ばバッチリ♪整形地/前道6m以上/閑静な住宅街/LDK20畳以上 |
| 採光面 | - | 構造/階数 | 木造/地上1階建 |
|---|---|---|---|
| 建ぺい率 | 40(%) | 容積率 | 60(%) |
| 駐車場 | 有 | 現況/引渡し | 建築中/相談 |
| 土地権利 | 所有権 | 私道負担面積 | - |
| 接道状況 | 接道: 南西 18m 公道 道路幅: 8m | 用途地域 | 第一種低層住居専用地域
|
| セットバック | なし | 法令上の制限 | 景観法 |
| 地目 | 宅地 | 地勢 | 平坦 |
| 建築確認番号 | 第R7 000141号 | 都市計画 | 市街化区域 |
| 小学校区 | () |
中学校区 | () |
| 取引態様 | 媒介 | 国土法届出 | 不要 |
| その他備考 | 施工会社:(株)SKCサワダ | ||
| 保育園・保育園 | 認定こども園百華幼稚園までの距離:437m | 小学校 | 旭川市立高台小学校までの距離:795m |
|---|---|---|---|
| 中学校 | 旭川市立春光台中学校までの距離:1281m | 高校 | 私立旭川実業高校までの距離:909m |
| 役所 | 鷹栖町役場までの距離:3859m | 郵便局 | 旭川春光台郵便局までの距離:353m |
| 図書館 | 旭川工業高等専門学校図書室までの距離:1167m | 交番 | 旭川中央警察署までの距離:7205m |
| 公園 | 千代の山公園までの距離:763m | 病院 | 北海道立旭川子ども総合療育センターまでの距離:1300m |
| 銀行 | 北星信用金庫旭川北支店までの距離:2264m | 買物 | |
| コンビニ | ローソン旭川春光台1条店までの距離:539m | ドラッグストア | ツルハドラッグ旭川春光台店までの距離:538m |
電話をかける(携帯・PHS可)
0166-74-7902
「ホームページを見て」とお伝え下さい。
お問い合わせ番号をお伝えください
RHS-TX400794
| 年利率 | % |
||
|---|---|---|---|
| ボーナス払い | 返済年数 | ||
| 頭金 | 直接入力する | 万円 | |

毎月のご返済額 |
ボーナス(×年2回) |
物件価格2,550万円 |
![]() |
![]() |
旭川市春光台二条4丁目
2550万円 |
電話でお問い合わせ
株式会社丸正池田 旭川店
|
電話をかける 0166-74-7902 ※「ホームページを見て」とお伝えください。 |
お問い合わせ番号をお伝えください RHS-TX400794 |
|---|
春光台エリアに人気の平屋が登場です( ´ ▽ ` )2026年2月完成予定です!お問い合わせお待ちしております。